城市规划展览馆在城市建设、城市对外经济交流等多方面领域起到越来越大的作用,也因此成为城市经济交往的窗口和区域名片。
其宣传普及城乡规划知识、搭建市情教育平台、展示城市形象、促进招商引资等诸多作用吸引城市管理者对规划展览馆的青睐,各级政府也越来越重视城市规划展览馆的布展设计工作,为打造城市交流的窗口,促进城市建设。
然而,城市间的差别使得城市规划展览馆没有统一的设计标准,给展馆的布展设计带来了极大的难度,以下我将以大峡谷集团对城市规划展览馆的设计为例简单介绍城市规划展览馆的设计。
总体规划模型设计
总体规划模型设计是整个展馆的重中之重,由于展示的城市规划规模巨大,展示内容较多,展示形式新颖多样,因此,在总体规划模型的设计中要确认模型摆放位置、立面尺寸、模型三维比例、颜色灯光、布展方式等设计工作。
展区规划设计
合理的展区分布是整个城市规划馆重要的前提,其关系到后面的总体布展设计与人员流向设计的规划展开。
整个展区规划要按照法定规划顺序设置展区布局,在布展工作中要按照城镇体系规划,总体规划、分区规划、专项规划、详细规划等顺序进行展区设置,要符合地方性行政政策,做到每一个展区内容充分展示布置,合理利用空间布局。
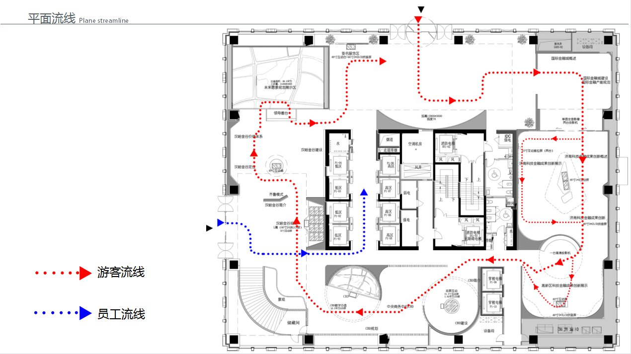
人员流向设计
人员流向设计即整个展馆的游览观光路线设计,要求人员流向合理,做到不重复游览,提高游客观光效率,满足不同观览者的观光需求。
其次,人员流向路线应当做到顺畅排布,通道空间宽阔,并且在流向安排上要重点突出观览者所需观展内容。
一般在展馆设计中会针对不同游客需要制定不同的人员走向路线,如领导路线,普通路线,招商路线、学生路线等等。

图为大峡谷集团制作汉峪金谷展厅人员流线图
序厅设计
如果说城市规划展览馆是整个城市对外交流的窗口,那么序厅就是整个城市规划展览馆展现的门户,观览者对整个展览馆的了解从序厅开始。
序厅的设计遵循三个原则:明亮、简洁和大气。
映入眼帘展现出的明亮效果会让观览者产生轻松愉悦的氛围;简洁的考虑出发于展设排布要满足安全疏散等基本要求,序厅不需要过多的展品陈设,只需要满足视觉的美感和安全疏散的要求即可;
大气则是为了让观览者从序厅中就能充分感受到整个城市规划馆所展现的恢弘气势,让其感受到整个城市无比宏伟的发展势头和美好的未来愿景。

图为大峡谷集团制作江西井冈山乔林党支部陈列馆序厅效果图
多媒体影院设计
多媒体大屏影院是城市规划展览馆的特色展示形式之一,也是突出整个展馆亮点的展现方式。借助多通道大屏投影、影视动漫、虚拟现实等多种高新展示技术呈现一个城市的岁月变迁。
以下是我们设计多媒体影院需要进行考究的三个方面:
1、投影幕规格选择:多媒体影院中应用有半球影院系统、180°弧幕、120°弧幕等多种规格投影系统。在城市规划展览馆中一般采用180°弧幕投影为宜;
2、影院容量设置:展览馆的影院容量设置一般选取60人左右较为适宜;
3、多媒体影视制作:多媒体影视制作要以充分展示一个城市或区域的发展为目标,重点抓好脚本编制、多媒体制作、配乐配音等工作。

图为大峡谷集团制作汉峪金谷展厅影院效果图
展馆环境设计
城市规划展览馆是整个城市对外交流的窗口和名片,场馆周边环境的建设很大程度上会影响观览者对整个观光过程的初步感受。
为达到极佳的游览效果和文化交流作用,良好的展馆环境成为展馆设计者考虑的首要设计要素,以求让观览者更好的认识和融入到整个城市规划交流之中。
上述介绍的总体规划模型、展区规划、人员流向设计、序厅设计、多媒体影院及展馆环境六要素是在设计过程中不可或缺的考量方面。
此外,还要对展馆主题、展区内容布置、多媒体展示方式等多个方面进行考究,增强城市规划展览馆的展示效果,使其成为展现城市魅力和发展历程的重要窗口,成为宣传城乡规划、提供学术交流的良好平台。
上一篇:展览展示空间设计的六大要素
下一篇:展览形式的设计过程及重点的把握


咨询热线
0755-26620006